Home
Projects
Contact Us
Home
Projects
Contact Us
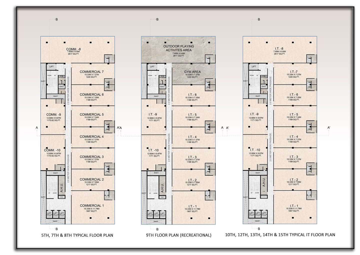
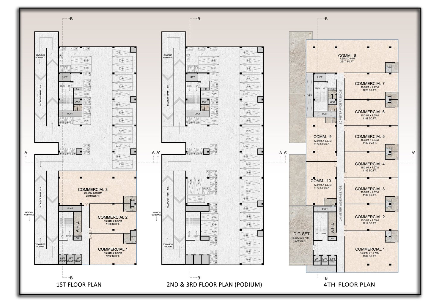
Proposed Corporate Park, Mahape (CMS)
Corporate Architecture
VIEW ALL PROJECTS